Oppdrag Ombygging og rehabilitering av barneskole

Oppdrags­giver Oppegård kommune

Sted Sofiemyr

Status Oppføring i 1993 og 1997

Areal 400 m²

Med utgangspunkt i nye funksjonsplaner og krav til inneklima og arbeidsmiljø skulle skolen fra 60-tallet rehabiliteres til et tidsriktig skoleanlegg.

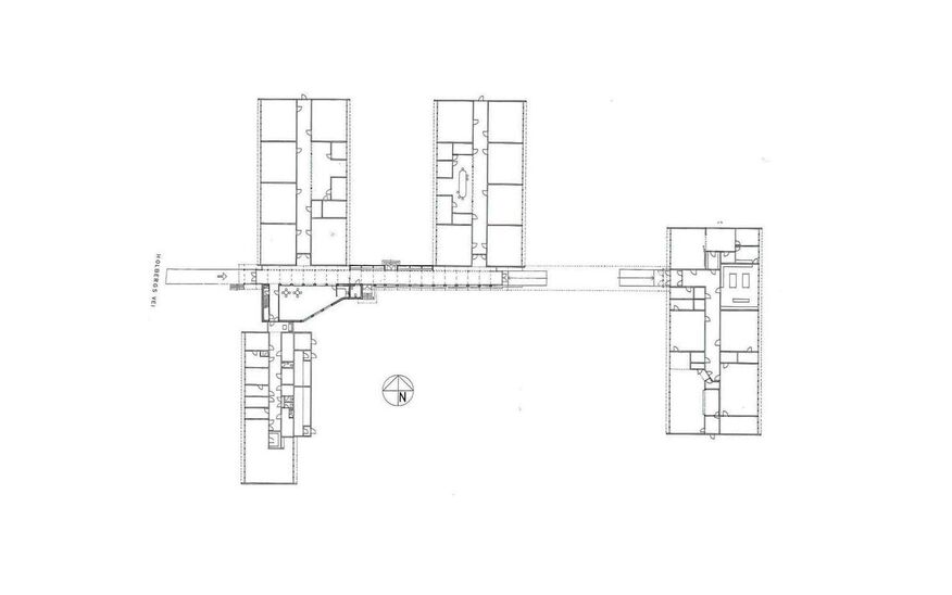
En ny vandrehall forbinder tre av paviljongene, og skaper møteplasser med dagslysinnfall og sittebenker i nisjer. Skolen har også ny hovedinngang og et mellombygg i to etasjer som gir rom for personale i 1. etasje og ventilasjonsaggregater i etasjen over.

Tilbygget fremstår med egenkarakter i et forsøk på å tilføre et ellers stramt og lineært bygningsanlegg nye kvaliteter med en enhetlig og sterk form. Samtidig er strukturen i 60-tallets elementbyggeri forsøkt videreforedlet ved en rendyrking av et av de minste bygningselementene, lecablokken, både som element, konstruksjon og overflate. Lecafarget blokk ble benyttet for å dyrke kontrasten mellom den vertikale og horrisontale linjen.