Oppdrag Ombygging - Utvikling

Oppdrags­giver Ski Kommune

Sted Ski

Status Ferdigstilt 2017

Areal 2200 m²

Foto Jiri Havran

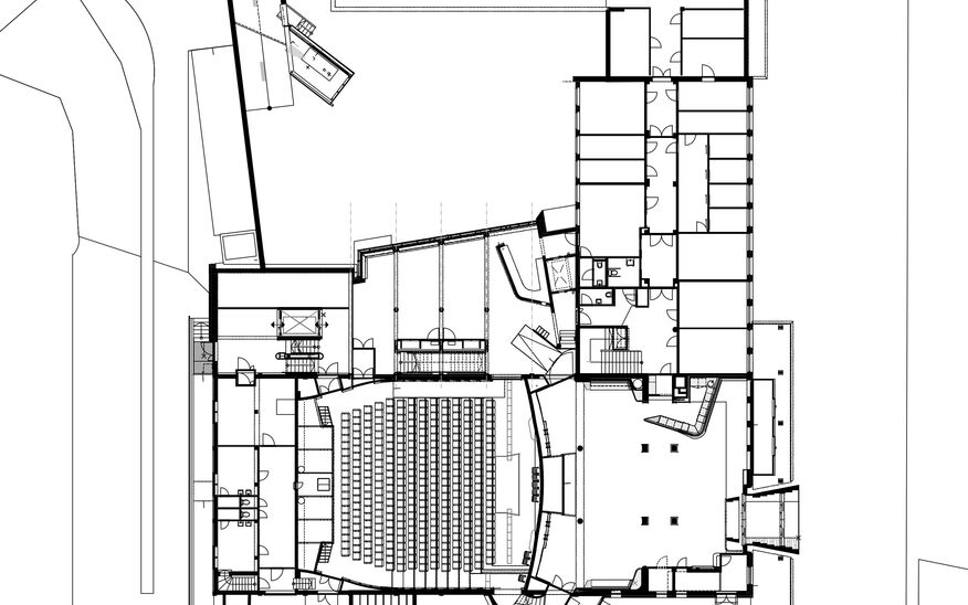
Rådhusteateret ligger side om side med Ski Rådhus, midt i Ski sentrum. Lokalet ble opprinnelig bygget som kinosal i 1957, men ble gjort om til teater og kulturscene i 2003.

Rådhusteateret ble totalrenovert i 2015-2017. Hovedsalen ble utvidet fra 360 til 521 seter, foajeen utvidet og åpnet ut mot torget, og ny hovedinngang ble etablert. I tillegg ble det oppført et tilbygg som inkluderer sidescene, sceneinngang, sidearealer til scenen, garderober, kantine/ teaterkafe, kulturscene og kultursal.

Sidescenen er tydelig i sin form - «den blå boksen», og resten av tilbygget har glassfasade mot gårdsplassen, hvor halvparten av glasset er utført i aerogel med gode isolasjonsegenskaper, samt at det slipper inn og sprer lys.