Fugleperspktiv fra sørøst

Fugleperspktiv fra sørøst

"Knausen" bevares og blir felles uteområde

"Knausen" bevares og blir felles uteområde

Gatetunet med felles renovasjon og uteområde - "Knausen".

Gatetunet med felles renovasjon og uteområde - "Knausen".

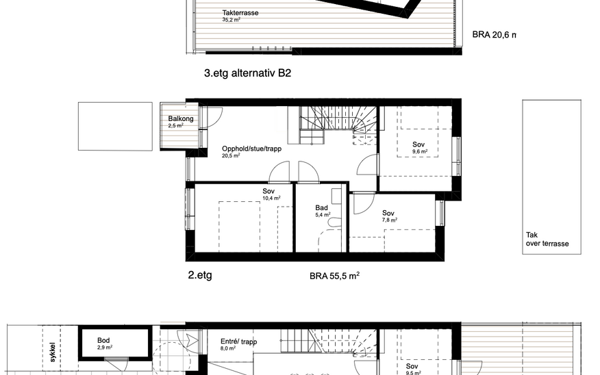
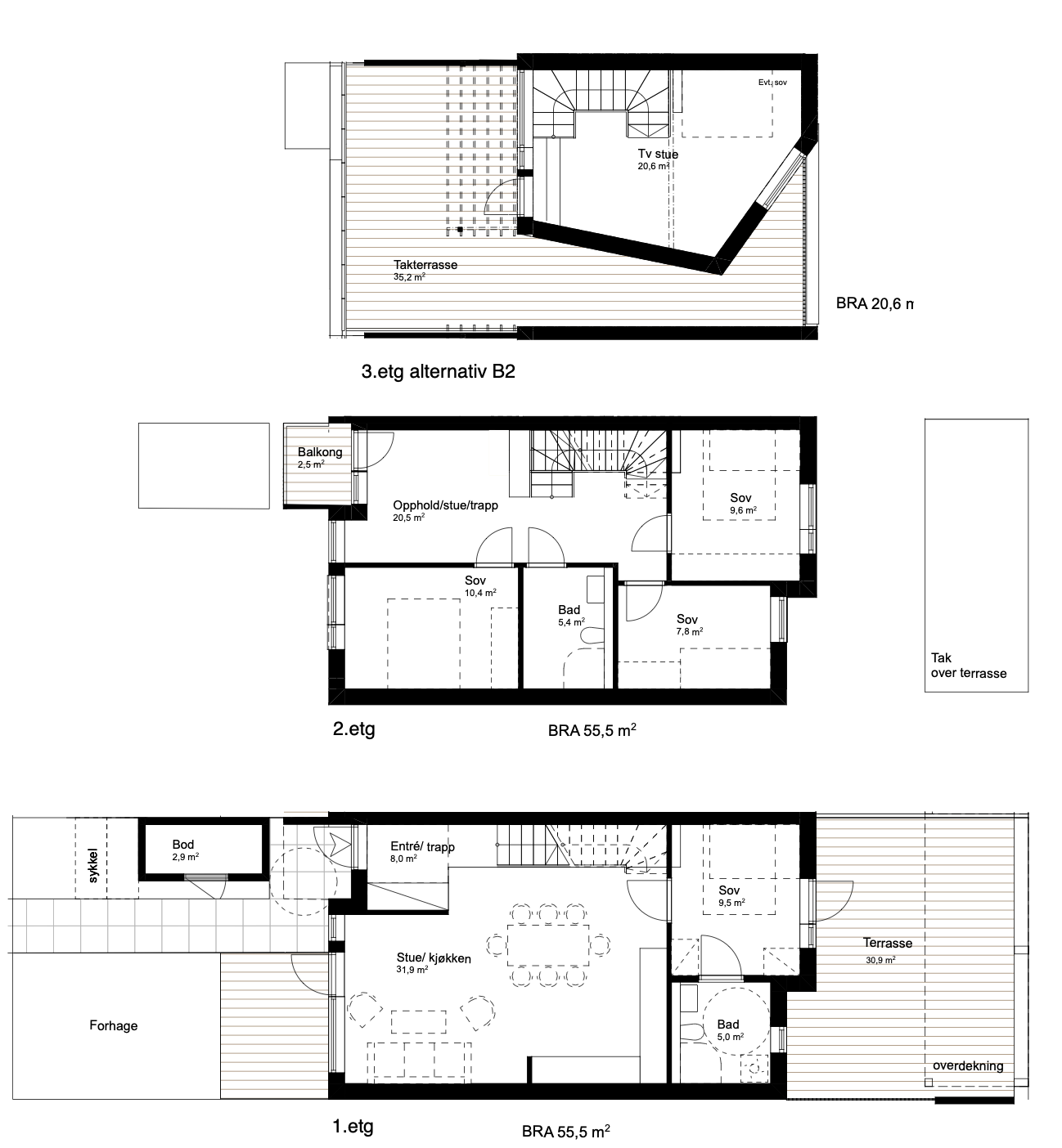
Typiske leilighetsplaner i rekke B

Typiske leilighetsplaner i rekke B

Rekke B, fasade mot vest

Rekke B, fasade mot vest

Rekke A, fasade mot øst

Rekke A, fasade mot øst

Utsnitt av illustrasjonsplan: Felles uteområde

Utsnitt av illustrasjonsplan: Felles uteområde

Avstander fra planområdet til viktige steder i Kolbotn

Avstander fra planområdet til viktige steder i Kolbotn

Oppdrag Detaljregulering

Oppdrags­giver Glomar Eiendom AS

Sted Kolbotn

Status Planforslag innsendt til planavdelingen i Nordre Follo kommune for saksbehandling før 1. gangsbehandling

Areal 2270 m2 BRA bolig

År 2025

Hensikten med planarbeidet er å tilrettelegge for bygging av rekkehus på de tre tomtene i Ormerudveien - 18, 20 og 22A. Planområder ligger sentralt plassert i direkte forlengelse av sentrumsområdet i Kolbotn. Tomten er nærmeste nabo til Kolbotn skole. Det planlegges 16 rekkehus som omkranser et felles uteområde hvor eksisterende terreng, vegetasjon og også grunnmurselementer fra eksisterende bolig, utnyttes til et uteromskonsept som vil gi området karakter og stedsidentitet. Uteområdet er lagt på den eksisterende "Knausen", som åpner seg mot sør. Gatetun med felles renovasjon samt gangveier og "smett" vil danne et internt nettverk som også knytter boligområdet til Ormerudveien. Arkitektoniske virkemidler som farger og detaljering, ulike av balkonger og takoppbygg, bidrar til variasjon og god kontakt mellom fellesområder og private uteplasser.