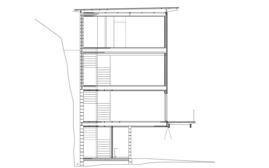
Wilhelm Frøshaugs vei 7 Prev Next Oppdrag Ny enebolig Oppdragsgiver Privat Sted Kolbotn Status Ferdigstilt 1999 Ny enebolig