Oppdrag Tilbygg

Oppdrags­giver Tyribo Sameie

Sted Hellerasten

Status Under oppføring 2019

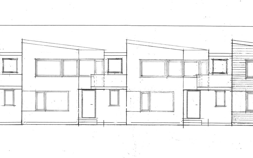
Tyribo Sameie på Hellerasten består av syv rekkehus fra 60-tallet. Vi fikk i oppgave å lage en prototype for et arealeffektivt tilbygg med et minimalt fotavtrykk. Reguleringsplanen ga tilgang til å utvide hver bolig med maksimalt 21 m2. Løsningen ble et to-etasjers tilbygg på inngangssiden som gir et ekstra soverom i 1.etg og en utvidelse av kjøkkenet i 2.etasje.

Tilbygget har pulttak som hovedhuset, men i en slakere takvinkel for å fremstå som klart underordnet hovedvolumets form. Én av ytterveggene i 2.etasje er skrå og krager utover et overdekket inngangsparti. Den skrå veggen gjør at mellomrommet mellom tilbyggene får en åpen form, av hensyn til dagslys og utsyn. Mellom tilbyggene er det balkonger som gir ekstra overdekket plass for sykkel og barnevogner. Fasadematerialet er tre, og fargebruken knytter seg til hovedvolumet, med en kontrasterende, lun naturfarge ved siden av inngangen.

Tilbyggene er tilpasset eksisterende bygning og inngår i en helhet, samtidig som at de har en egenkarakter som tydelige addisjoner.