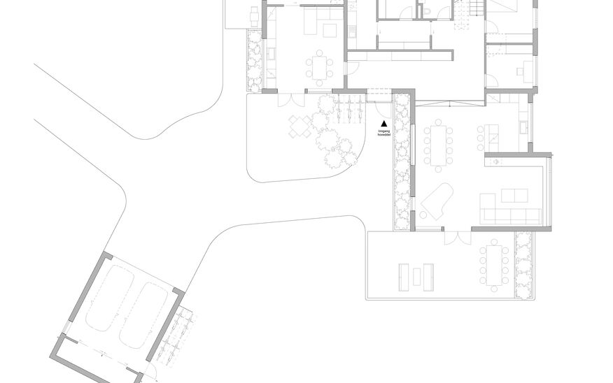
1. etg

1. etg

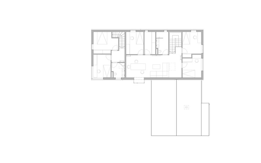
2. etg

2. etg

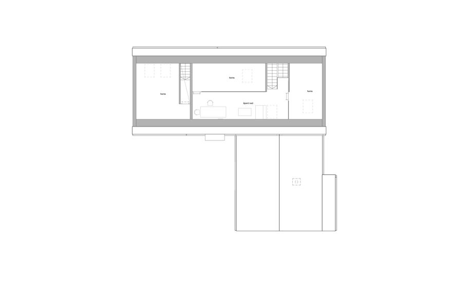
Hems

Hems

Dette er en planlagt enebolig på Svartskog med en tilhørende utleieleilighet. Utviklingen av prosjektet har tatt utgangspunkt i tomten sin egenart og kvaliteter. Tomten er som en åpning i skogen, plassert på et platå i terrenget på en åsrygg. Stedet gir assosiasjoner til en tradisjonell husmannsplass, og nettopp dette har vært grunnlaget for utformingen av prosjektet. Bebyggelsen er planlagt plassert nordvendt, med flere bygningsvolumer som sammen med en garasje skaper et tun. Dette gir rom for en romslig hage mot sør, egnet for ulike aktiviteter og dyrking. Dette er et sted som vil appellere til de som liker hagearbeid og ønsker å leve i harmoni med naturen og dyrelivet rundt seg.

Boligen er utformet med tanke på romslighet og fleksibilitet, slik at den kan fungere som et hjem for flere generasjoner eller en større familie. Det er også en mulighet for å leie ut en egen separat leilighet som har en intern forbindelse med resten av boligen.

Huset består av en hoveddel og et tilbygg. Hoveddelen strekker seg i en øst-vest retning, i samme retning som det nåværende huset som står på tomten. "Tilbygget" går sørover fra hoveddelen, med en høydeforskjell på to trinn for å følge terrenget i hagen. Her finner man stue og kjøkken i ett, med høyt tak som gir en følelse av romslighet. Mot sør er det planlagt en markterrasse som får sollys gjennom hele dagen. Garasjen er plassert i sørvest, og dette skaper en fin gårdsplass ved inngangen til eiendommen. Utformingen og materialvalget for det nye bygget og garasjen vil videreføre stilen og materialene fra det eksisterende bygget som skal rives, med saltak og trepanel på fasadene.